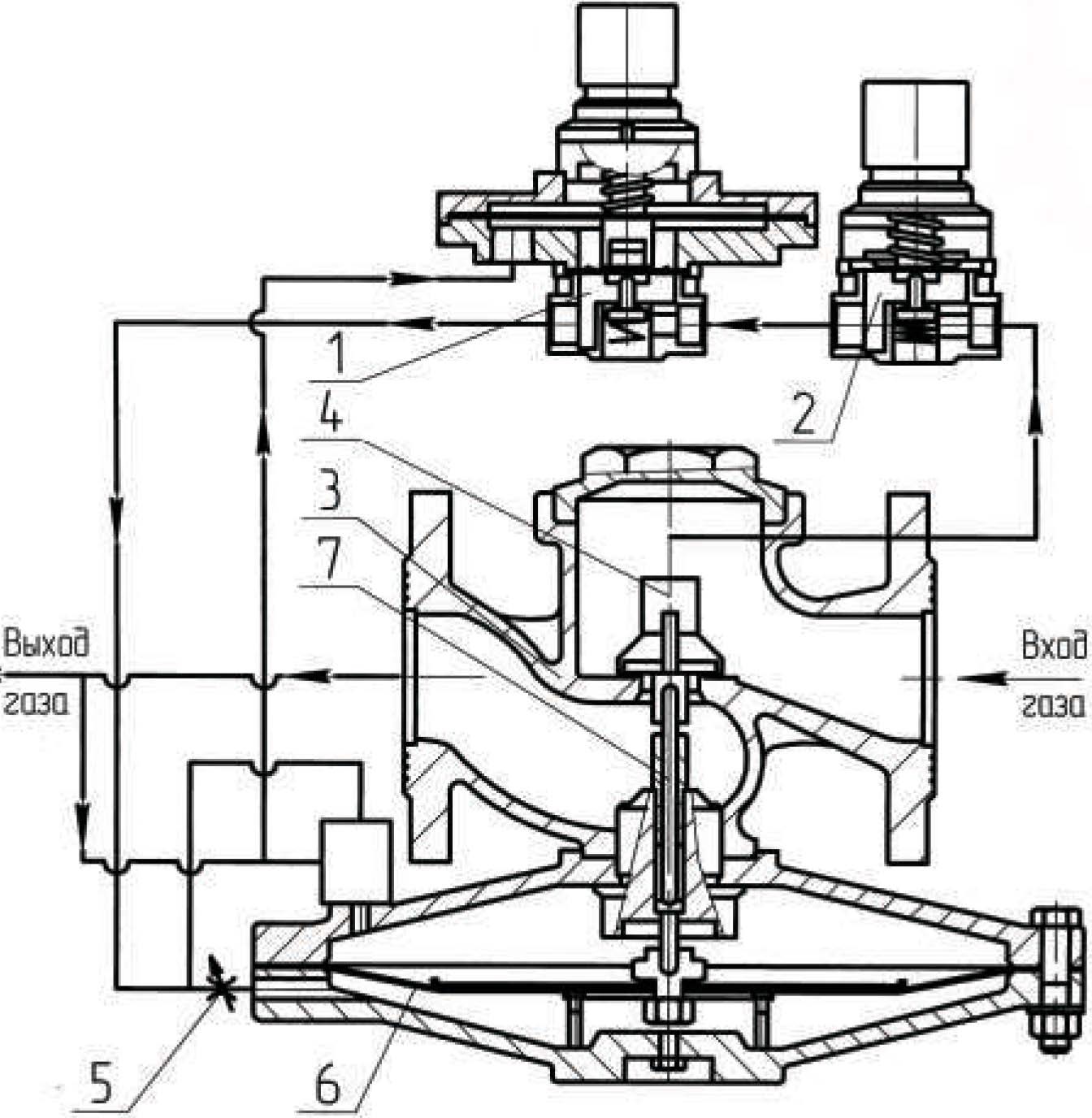
Регулятори тиску газу типу РДБК

Регулятори тиску газу типу РДБК