SD300 Series - Industrial SD Card - Exascend
SD-3001 R - Светозвуковой оповещатель
SDI3001-深微光电科技(深圳)有限公司
德国ADL电源 脉冲器电源系列 SD30 SD151 SD301 SB3...
SDNX 3001
Clutch unidirectional starter as-pl sd3001 | Sh...
Новый Погрузчики Disd Sd300 с ценами от дилеров
SD300 | CHDK Wiki | FANDOM powered by Wikia
SD300_8799023.PDF Datasheet Download --- IC-ON-...
A1_SD1_Modellsatz_CI_13_SD1_Mod 3 | PDF
ED3001/2-KD On Shore Technology Inc. | Connecto...
SD3001 BLACK | シエラデザインズ シューズ
SD5001 BLACK | シエラデザインズ シューズ
SD3301M-SD3351M-SD3401MP-SD3001MP - Agriculture
::뉴발란스 키높이,쿠셔닝 파스텔 슬리퍼! SD1301!...
SD300-and-SD200_EN-1 | PDF
SD-1001 - sahaphonbag
SD931 - 코인텍
SD3001 GRAY | シエラデザインズ シューズ
PT SD300/PT SD301 정밀 수동 각도 테이블/웜기어/...
JSD-3001 - linux-sunxi.org
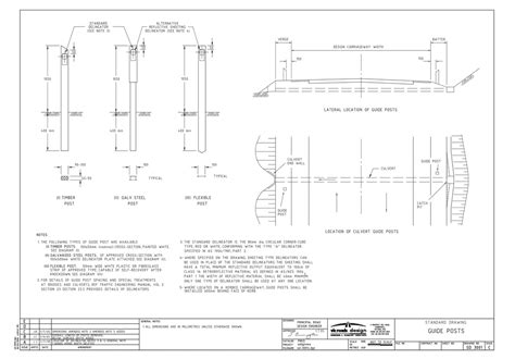
SD3001 - Guide Posts
SATEL SD-3001 | Kültéri szirénák | Vagyonvedele...
SD-0301 - Avantech
محصولات استاندارد موتور DS-3001 سوئیچ صندلی گرم...
S3001_des