Водопроводная насосная станция второго подъема ...
ТХ Насосная станция II-подъёма с бактерицидными...
Все комплекты - Насосная станция второго подъем...
Комплектная насосная станция 2 подъема с водопо...
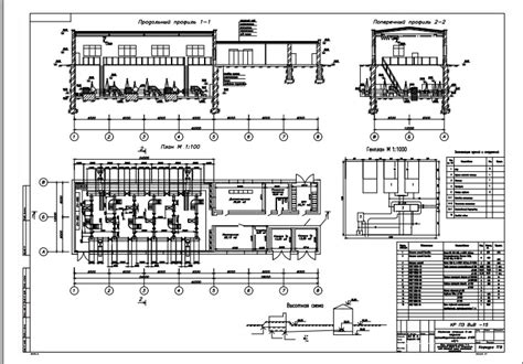
Насосная станция II подъема. План на отм. 0.000...
Насосная станция II подъема. Плита покрытия П1....
Монтаж насосной станции 1-го и 2-го подъёма
Насосная станция II подъема - Чертежи, 3D Модел...
Насосные станции второго подъема воды | Арматех
Насосная станция второго подъема
Насосная станция второго подъёма насосы типа Wi...
Площадка насосной станции
Лекция 7 Насосная станция второго подъема
Насосные станции - насосные станции 2 подъема |...
Расчет насосной станции 2-го подъема - Чертежи,...
Насосная станция 2-го подъема с резервуарами чи...
Лекция 7 Насосная станция второго подъема - Стр 5
Насосная станция 2-го подъема системы водоснабж...
Насосная станция AquaViva AV12002 (220V, 3,8m3/...
Блочно-модульные насосные станции | Купить по ц...
Насосная станция 2-го подъема (3 насоса) — Gree...
Чертеж разработки конструкции насосной станции ...
Купить DWG - Конструкции железобетонные (КЖ) - ...
Насосная станция 1 и 2 подъема - YouTube
АСУ ТП насосных станций второго подъема
Насосная станция 2 подъема - Чертежи, 3D Модели...
Насосная станция второго подъема - Чертежи, 3D ...
Повыcительные насосные станции и станции II под...